Продажа недвижимости в Абинске - Страница 2
- Абинск »
- Недвижимость в Абинске
Без посредников - прямая продажа от надежного застройщика. Новый жилой комплекс таунхаусов в Сочи. До МОРЯ всего 100 метров по прямой!!! Вокруг пейзажи гор и чистый морской воздух.
Таунхаус 88 м2 трехуровневый с прилегающей территорией 0,5 сотки, на котором можно поставить уютную беседку и высадить красивые растения.
Первый этаж – прихожая, кухня – гостиная, с/у, кладовая.
Второй этаж – спальня, с/у, гардеробная.
Эксплуатируемая кровля – терраса (можно сделать комнату с с/у)
Коммуникации все центральные: газ, электричество, водоснабжение, канализация. Индивидуальное газовое отопление. Подведен интернет. Без отделки.
Территория ЖК «Тюльпановка» огорожена, благоустроена. Выполнен ландшафтный дизайн. На территории есть несколько детских и спортивных площадок, футбольные и волейбольные площадки, тренажеры, памп-трек. Беседки, банный комплекс.
Рядом с комплексом магазины, кафе, парикмахерская, детский сад и школа, амбулаторий. Все удобно.
Остановки транспорта (автобус и ж/д) – 5 мин пешком.
Отличное место для семейного отдыха с детьми. Спокойная обстановка, чистейшее море.
Ипотека от Сбербанка и ВТБ. Рассрочка от застройщика. 214-ФЗ.
22.12.2025
27 100 000 ₽
Таунхаус для Вас и вашей семьи в Сочи в ЖК «Тюльпановка».
Эко-курорт в 100 метрах от моря!!! Экологически чистый район – для жизни и отдыха, вдали от городской суеты. Для тех кому важно море – идеальный вариант! Здесь чистейшее море, береговая линия 3,5км – каждому есть место даже в самый пик летнего сезона.
Таунхаус привлекателен и как инвестиций проект – в то время когда вы сами не пользуетесь таунхаусом, можно его сдавать. Всегда есть желающие насладиться отдыхом в Эко-курорте.
Закрытая облагороженная территория, за которой следит управляющая компания.
Теннисный корт, памп-трек, спортивные и детские площадки, тренажеры, теннисные столы, зоны отдыха для взрослых и детей, банный комплекс, мангал – каждый найдет чем заняться на территории.
2-х уровневый таунхаус 88,1 кв.м у моря с просторной террасой. Все коммуникации центральные, индивидуальное отопление (газовый котел), оптоволокно. Парковочное место у дома. На территории комплекса есть и гостевые парковки. Рядом есть прилегающий участок 0,8 сотки, на котором можно поставить беседку и прекрасно проводить вечера.
Вся инфраструктура в пешей доступности: детский сад, школа, Магнит, Пятерочка, аптеки, пункты выдачи Озон, Wildberries, отделение Сбербанка, банкоматы. Удобная транспортная доступность - остановки электрички, автобусов находятся рядом.
Люди уже живут и наслаждаются отдыхом в этом замечательном районе.
Уютный дом на берегу моря!
Чистые документы. Рассрочка без процентов от застройщика.
22.12.2025
31 500 000 ₽
Продаю таунхаус в коттеджном поселке «Тюльпановка». Это новый живописный комплекс таунхаусов на берегу Черного моря в Сочи. Для тех, кто хочет жить в гармонии с природой. Отличное решение для жизни, отдыха и инвестиций.
Комплекс расположен в черте города в Лазаревском районе, в окружении моря и пейзажа Кавказских гор.
Характеристики поселка:
- первая береговая, 100м до моря, чистый оборудованный пляж
- закрытая территория 7,7 Га
- парковые зоны и ландшафтный дизайн на территории поселка
- оборудованы зоны отдыха, детские и спортивные площадки, теннисный корт, тренажеры
- памп-трек
- банный комплекс с открытым кафе
- планируется открытый бассейн
Дом оснащен центральными коммуникациями:
- электричество
- вода
- канализация
- газ, установлен газовый котел
- интернет
Таунхаус 2-х уровневый + терраса. Есть парковочное место.
Планировка: кухня-гостиная, две спальни, три санузла (на каждом уровне), терраса
Предчистовая отделка.
Жилой квартал расположен на равнине, в экологически чистом районе города Сочи.
2 мин. пешком до оборудованного просторного чистого пляжа.
В шаговой доступности вся городская инфраструктура: гипермаркеты 5ка и Магнит, школа, детский сад, кафе, аптеки, столовые, салоны красоты, пункты выдачи Ozon и Wildberries, Сбербанк.
Автобусная остановка - 5 мин. пешком, ж.д. станция - 2 мин.
22.12.2025
27 900 000 ₽
Продается уютная дача на берегу моря - таунхаус в Сочи ЖК Тюльпановка. С отделкой. На территории все создано для комфортного отдыха и взрослых, и детей.
- 100 метров до моря!!!
- Закрытая облагороженная территория, дети спокойно могут гулять
- Своя управляющая компания – территория очень ухоженная и красивая
- Спортивные и детские площадки, тренажеры, футбольные площадки, памп-трек – есть все для здорового образа жизни
- Беседки, мангальная зона
- Банный комплекс
Есть парковочное место. Для гостей есть гостевая парковка.
2-х этажный таунхаус 88,1 кв.м с просторной эксплуатируемой террасой у моря .
Все коммуникации центральные (холодная вода, электричество, канализация).
Отопление – индивидуальное, установлен газовый котел
Интернет-оптоволокно.
Выполнена отделка. Установлена кухня с техникой, шкаф в прихожей. Нужно только поставить мебель и наслаждаться отдыхом у моря.
Вся инфраструктура в шаговой доступности: детский сад, школа, Магнит, Пятерочка, аптеки, пункты выдачи Озон, Wildberries, отделение Сбербанка, кафе.
Отличная транспортная доступность - остановки электрички, автобусов в 5 ти минутах ходьбы. Равнинная местность.
Большая часть таунхаусов в жилом квартале уже построена. 70% заселено. Строительство велось по 214-ФЗ. Надежный застройщик. Ипотека Сбербанка и ВТБ. Индивидуальная рассрочка от застройщика без %.
22.12.2025
32 600 000 ₽
Продажа жилого дома в уникальном месте!!!
Желаете приобрести жилой дом вдали от городской суеты? Тогда Наше предложение точно Вам подходит!
Новый жилой дом расположен в живописном месте, вблизи одного из чудес природы- Гуамского ущелья.
Адрес: переулок Газнийский, х. Гуамка, Апшеронский район, Краснодарский край.
Дом каркасный, построен по финской технологии. Выполнен полностью из экологически чистой древесины.
Одноэтажный жилой дом общей площадью 92,8 кв.м.
Включает в себя тамбур (площадью 3,52 кв.м.), две спальных комнаты (площадью 11,25 кв.м. каждая), студия (площадью 32,9 кв.м.), веранда (площадью 25,5 кв.м.), с/у (площадью 8,35 кв.м.).
В доме обеспечено электроснабжение, индивидуальная канализация.
Водоснабжение – требуется бурение скважины.
Дом расположен на земельном участке площадью от 6 соток. Земельный участок в собственности.
Вид разрешенного использования – для ведения личного подсобного хозяйства.
Участок огорожен забором.
Жилой дом не является капитальным строением!!!
Цену и иные вопросы уточняйте по телефону.
11.12.2025
12 700 000 ₽
Продажа жилого дома в уникальном месте!!!
Желаете приобрести жилой дом вдали от городской суеты? Тогда Наше предложение точно Вам подходит!
Новый жилой дом расположен в живописном месте, вблизи одного из чудес природы - Гуамского ущелья.
Адрес: переулок Газнийский, х. Гуамка, Апшеронский район, Краснодарский край.
Дом каркасный, построен по финской технологии. Выполнен полностью из экологически чистой древесины.
Двухэтажный жилой дом общей площадью 128,57 кв.м.
Включает в себя тамбур (площадью 3,52 кв.м.), две спальных комнаты (площадью 11,25 кв.м. каждая), студия (площадью 32,9 кв.м.), веранда (площадью 25,5 кв.м.), с/у (площадью 8,35 кв.м.), большая спальная комната на втором этаже (площадью 35,8 кв.м.).
В доме обеспечено электроснабжение, индивидуальная канализация.
Водоснабжение – требуется бурение скважины.
Дом расположен на земельном участке площадью от 6 соток. Земельный участок в собственности.
Вид разрешенного использования – для ведения личного подсобного хозяйства.
Участок огорожен забором.
Жилой дом не является капитальным строением!!!
Цену и иные вопросы уточняйте по телефону.
11.12.2025
16 700 000 ₽
Продается земельный участок 10 соток в новом микрорайоне у водохранилища
Уникальное предложение для тех, кто ценит комфорт и природу! Продается ровный земельный участок площадью 10 соток (40x25 м) в развивающемся новом микрорайоне станицы Старокорсунской. Идеальное место для строительства собственного дома мечты.
Основные параметры:
Цена: 4 500 000 рублей. Рассмотрим разумный торг.
Площадь: 10 соток (40 x 25 метров).
Фасад: 25 метров.
Адрес: Краснодарский край, ст-ца Старокорсунская, ул. Обрывная.
Ключевые преимущества:
Все коммуникации по границе участка: К участку подведены газ и электричество. Это решает главные вопросы и значительно ускоряет начало строительства, экономя ваши время и средства.
Участок полностью расчищен, не нужно тратить деньги на его обработку.
Идеальное расположение: Участок находится в новом микрорайоне с современной планировкой и развитой инфраструктурой. При этом место очень тихое и спокойное — рядом находится живописное водохранилище, что обеспечивает прекрасный вид и возможности для отдыха.
Отличный потенциал: Ровная форма участка и большой фасад (25 м) открывают широкие возможности для проектирования дома любой сложности и планировки придомовой территории (сад, гараж, зона отдыха).
Перспективное вложение: Станица Старокорсунская активно развивается и пользуется спросом благодаря близости к Краснодару и благоприятной экологической обстановке. Покупка здесь — это выгодная инвестиция в будущее.
Этот участок идеально подойдет:
Для строительства постоянного дома для жизни в экологически чистом месте.
Для постройки просторной загородной дачи для отдыха всей семьей.
В качестве выгодной инвестиции в перспективный район.
Не упустите шанс приобрести участок для будущего дома в одном из самых привлекательных мест рядом с Краснодаром! Свяжитесь с нами для просмотра и обсуждения деталей.
11.12.2025
4 500 000 ₽
Дом с прямым видом на море в Хостинском районе г. Сочи!
Продается просторный дом 196 кв.м. в престижном районе г.Сочи - Хостинский район , СТ Рассвет, уч 116
Кад номер дома : 23:49:0304020:2659 - 196 м2
Кад номер участка : 23:49:0304020:2057- 4,6 сот.
Ключевые преимущества:
Невероятные виды:
Прямой, ничем не загороженный вид на Черное море с высоты. Уединенность и минимум соседей.
Простор и потенциал:
Чистовая отделка. Покупайте и сразу делайте ремонт по вашему вкусу и дизайну — никаких чужих решений!
Выгодный статус:
Участок 4,6 соток с назначением "Садоводство". Есть электричество 15 кВт.
Комфорт для автомобилей:
Цокольный этаж с гаражом + возможность парковки для 2 автомобилей.
Отличная локация:
Тихий и престижный район Хосты, развитая инфраструктура, близость к морю и центру Сочи.
Это не просто дом — это возможность создать личное пространство мечты на побережье Черного моря.
Идеально для постоянного проживания в теплом климате или для инвестиций в престижную недвижимость г. Сочи.
Цена конкурентная. Все вопросы по телефону.
Гарантирую юридическую чистоту сделки .
10.12.2025
44 900 000 ₽
Продается 2-комн. квартира, площадью 65.9 м2 в монолитно-кирпичной новостройке. Возможен вариант покупки с использованием ипотечных средств, есть рассрочка, возможна покупка с использованием материнского капитала, есть военная ипотека.
Жилая площадь 29.43 м2, кухня 9.89 м2, предчистовая отделка.
Квартира располагается на 2 этаже 19-этажного дома в ЖК Лучший.
Застройщик - ГК ССК, сдача дома - IV квартал 2025 года, высота потолков 2.9 м.
Дом оборудован пассажирским лифтом, закрытая территория, парковка охраняется. Обеспечение безопасности: видеонаблюдение, противопожарная система. Инфраструктура: детские площадки, спортивные площадки, места для отдыха, супермаркет, рестораны, фитнес-центр, пункты бытового обслуживания, коммерческие объекты.
Дома сданы раньше сроков, ключи в момент сделки!
Жилой квартал «Лучший» - единая экосистема домов, в которой соблюдаются стандарты максимального качества, экологичности, богатства инфраструктуры, безопасного, живописного и престижного окружения и транспортной доступности. Организация уличного пространства и формирование благоприятной, эстетически привлекательной среды за порогом жилья является важным этапом строительства. Ландшафтный дизайн жилого квартала «Лучший» включает в себя не только озеленение двора, но и создание его внутренней инфраструктуры.
График работы ОП в новогодние праздники:
31.12.25 - 03.01.26 - выходной
04.01.26 - 06.01.26 с 10: 00 до 18: 00.
07.01.26 - выходной
08.01.26 - 11.01.26 с 10: 00 до 18: 00.
С 12.01.26 - в стандартном режиме
Два 24-этажных литера, выполненных по надежной технологии монолит-кирпич.
Компания ССК выражает благодарность тем, кто ежедневно вкладывает силы в развитие страны и заботится о её будущем. В рамках программы «Доступное жильё» предусмотрена скидка 3% от стоимости приобретаемой квартиры для врачей и медицинского персонала, учителей и преподавателей школ и вузов, участников специальной военной операции, военнослужащих, моряков (Калининград) , а также молодых семей с детьми.
Мы ценим ваш вклад и стремимся сделать новое, комфортное жильё с современной отделкой и продуманной планировкой ещё более доступным для вас.
Аккредитованные банки: Сбербанк, Альфа-Банк, ВТБ, Банк Уралсиб, РОССИЯ, Абсолют Банк, Металлинвестбанк, РНКБ, ПСБ, Кубань Кредит, Банк ВБРР, Россельхозбанк.
Позвоните и узнайте условия покупки прямо сейчас!
19.12.2025
8 896 500 ₽
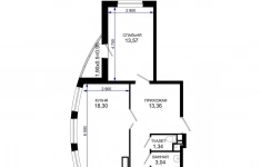
Продается 2-комн. квартира, площадью 63.3 м2. Возможен вариант покупки с использованием ипотечных средств.
Жилая площадь 38 кв. м, кухня 15 кв. м. Комнаты: 20/18 м2, комнаты изолированные. Квартира располагается на 8 этаже 9-этажного дома.
Дом расположен в центре инфраструктуры. Во дворе 2 детские площадки, рядом в шаговой доступности 2 школы и дет. сад., магазины, остановка, к морю пешком 5 мин. Дом монолитный, ввод в эксплуатацию 2016 год. Квартира расположена на 8 этаже 9 этажного дома, на этаже 4 квартиры. Немного о коммуникациях (все зафиксировано на фото). Устройство развязки электричества распределено на 32 переключателя - каждый объект определен индивидуально под свой узел, т. е все раздельно. Питание каждого потребителя происходит по независимой линии, напрямую от питающего узла, отдельно от других электроприёмников. Система водоснабжения распределена по коллекторной схеме и имеет свой кран перекрытия: обеспечивает стабильное давление воды в каждой точке за счёт независимого подключения каждого прибора к коллектору, каждый контур можно отключить отдельно для ремонта или обслуживания, не затрагивая остальные точки водоразбора. Распределение интернета осуществляется через кабель-канал и через модем. Выделены отдельные точки в каждой комнате, вы можете при подключении иметь 100-процентную скорость интернета будь то телевизор либо компьютер. Ремонт выполнен из высококачественных материалов. Качество пластиковых окон поддерживает высокий уровень тепло- и шумоизоляции. Дом газифицирован. Мебель в стоимость квартиры включена. Один взрослый собственник.
08.12.2025
14 000 000 ₽
Продается 2-комн. квартира, площадью 56.1 м2 в монолитно-кирпичной новостройке. Возможен вариант покупки с использованием ипотечных средств, есть рассрочка, возможна покупка с использованием материнского капитала, есть военная ипотека.
Жилая площадь 25.6 м2, кухня 16.1 м2, черновая отделка.
Квартира располагается на 2 этаже 16-этажного дома в ЖК Традиции.
Застройщик - ГК ССК, сдача дома - III квартал 2027 года, высота потолков 2.72 м.
Дом оборудован пассажирским лифтом. Обеспечение безопасности: видеонаблюдение, противопожарная система. Инфраструктура: детские площадки, спортивные площадки, места для отдыха, супермаркет, рестораны, фитнес-центр, пункты бытового обслуживания, коммерческие объекты.
В жилом комплексе «Традиции» вы найдёте всё, чтобы создать свой особенный уклад жизни. Возможно, именно здесь начнётся новая семейная традиция, которая станет дорогой сердцу на долгие годы.
В радиусе 5 минут ходьбы от комплекса уже функционируют школы и детские сады, а дорога в центр города занимает 15 минут.
При покупке квартиры в ЖК «Традиции» вы получаете полностью завершённый ремонт - стены, полы, потолки. Вам не нужно тратить время и силы на отделку.
Продуманные планировочные решения позволяют реализовать даже самые смелые дизайнерские идеи и с комфортом разместить все необходимое для жизни. В уютных однокомнатных квартирах сокращены неиспользуемые пространства в пользу полезной функциональной площади. Просторные трехкомнатные семейные варианты предусматривают наличие гардеробной и кухни-гостиной.
График работы ОП в новогодние праздники:
31.12.25 - 03.01.26 - выходной
04.01.26 - 06.01.26 с 10: 00 до 18: 00.
07.01.26 - выходной
08.01.26 - 11.01.26 с 10: 00 до 18: 00.
С 12.01.26 - в стандартном режиме
Аккредитованные банки: Сбербанк, Альфа-Банк, ВТБ, Банк Уралсиб, РОССИЯ, Абсолют Банк, Металлинвестбанк, РНКБ, ПСБ, Кубань Кредит, Банк ВБРР, Россельхозбанк.
Позвоните и узнайте условия покупки прямо сейчас!
07.12.2025
7 573 500 ₽
Продается 2-комн. квартира, площадью 65.5 м2 в монолитно-кирпичной новостройке. Возможен вариант покупки с использованием ипотечных средств, есть рассрочка, возможна покупка с использованием материнского капитала, есть военная ипотека.
Жилая площадь 29.43 м2, кухня 9.83 м2, предчистовая отделка.
Квартира располагается на 14 этаже 19-этажного дома в ЖК Лучший.
Застройщик - ГК ССК, сдача дома - IV квартал 2025 года, высота потолков 2.9 м.
Дом оборудован пассажирским лифтом, закрытая территория, парковка охраняется. Обеспечение безопасности: видеонаблюдение, противопожарная система. Инфраструктура: детские площадки, спортивные площадки, места для отдыха, супермаркет, рестораны, фитнес-центр, пункты бытового обслуживания, коммерческие объекты.
Дома сданы раньше сроков, ключи в момент сделки!
Жилой квартал «Лучший» - единая экосистема домов, в которой соблюдаются стандарты максимального качества, экологичности, богатства инфраструктуры, безопасного, живописного и престижного окружения и транспортной доступности. Организация уличного пространства и формирование благоприятной, эстетически привлекательной среды за порогом жилья является важным этапом строительства. Ландшафтный дизайн жилого квартала «Лучший» включает в себя не только озеленение двора, но и создание его внутренней инфраструктуры.
График работы ОП в новогодние праздники:
31.12.25 - 03.01.26 - выходной
04.01.26 - 06.01.26 с 10: 00 до 18: 00.
07.01.26 - выходной
08.01.26 - 11.01.26 с 10: 00 до 18: 00.
С 12.01.26 - в стандартном режиме
Два 24-этажных литера, выполненных по надежной технологии монолит-кирпич.
Компания ССК выражает благодарность тем, кто ежедневно вкладывает силы в развитие страны и заботится о её будущем. В рамках программы «Доступное жильё» предусмотрена скидка 3% от стоимости приобретаемой квартиры для врачей и медицинского персонала, учителей и преподавателей школ и вузов, участников специальной военной операции, военнослужащих, моряков (Калининград) , а также молодых семей с детьми.
Мы ценим ваш вклад и стремимся сделать новое, комфортное жильё с современной отделкой и продуманной планировкой ещё более доступным для вас.
Аккредитованные банки: Сбербанк, Альфа-Банк, ВТБ, Банк Уралсиб, РОССИЯ, Абсолют Банк, Металлинвестбанк, РНКБ, ПСБ, Кубань Кредит, Банк ВБРР, Россельхозбанк.
Позвоните и узнайте условия покупки прямо сейчас!
18.12.2025
8 842 500 ₽
Продается 2-комн. квартира, площадью 65.7 м2 в монолитно-кирпичной новостройке. Возможен вариант покупки с использованием ипотечных средств, есть рассрочка, возможна покупка с использованием материнского капитала, есть военная ипотека.
Жилая площадь 29.43 м2, кухня 9.86 м2, предчистовая отделка.
Квартира располагается на 18 этаже 19-этажного дома в ЖК Лучший.
Застройщик - ГК ССК, сдача дома - IV квартал 2025 года, высота потолков 2.9 м.
Дом оборудован пассажирским лифтом, закрытая территория, парковка охраняется. Обеспечение безопасности: видеонаблюдение, противопожарная система. Инфраструктура: детские площадки, спортивные площадки, места для отдыха, супермаркет, рестораны, фитнес-центр, пункты бытового обслуживания, коммерческие объекты.
Дома сданы раньше сроков, ключи в момент сделки!
Жилой квартал «Лучший» - единая экосистема домов, в которой соблюдаются стандарты максимального качества, экологичности, богатства инфраструктуры, безопасного, живописного и престижного окружения и транспортной доступности. Организация уличного пространства и формирование благоприятной, эстетически привлекательной среды за порогом жилья является важным этапом строительства. Ландшафтный дизайн жилого квартала «Лучший» включает в себя не только озеленение двора, но и создание его внутренней инфраструктуры.
График работы ОП в новогодние праздники:
31.12.25 - 03.01.26 - выходной
04.01.26 - 06.01.26 с 10: 00 до 18: 00.
07.01.26 - выходной
08.01.26 - 11.01.26 с 10: 00 до 18: 00.
С 12.01.26 - в стандартном режиме
Два 24-этажных литера, выполненных по надежной технологии монолит-кирпич.
Компания ССК выражает благодарность тем, кто ежедневно вкладывает силы в развитие страны и заботится о её будущем. В рамках программы «Доступное жильё» предусмотрена скидка 3% от стоимости приобретаемой квартиры для врачей и медицинского персонала, учителей и преподавателей школ и вузов, участников специальной военной операции, военнослужащих, моряков (Калининград) , а также молодых семей с детьми.
Мы ценим ваш вклад и стремимся сделать новое, комфортное жильё с современной отделкой и продуманной планировкой ещё более доступным для вас.
Аккредитованные банки: Сбербанк, Альфа-Банк, ВТБ, Банк Уралсиб, РОССИЯ, Абсолют Банк, Металлинвестбанк, РНКБ, ПСБ, Кубань Кредит, Банк ВБРР, Россельхозбанк.
Позвоните и узнайте условия покупки прямо сейчас!
07.12.2025
8 869 500 ₽
Продается 2-комн. квартира, площадью 65.7 м2 в монолитно-кирпичной новостройке. Возможен вариант покупки с использованием ипотечных средств, есть рассрочка, возможна покупка с использованием материнского капитала, есть военная ипотека.
Жилая площадь 29.43 м2, кухня 9.86 м2, предчистовая отделка.
Квартира располагается на 11 этаже 19-этажного дома в ЖК Лучший.
Застройщик - ГК ССК, сдача дома - IV квартал 2025 года, высота потолков 2.9 м.
Дом оборудован пассажирским лифтом, закрытая территория, парковка охраняется. Обеспечение безопасности: видеонаблюдение, противопожарная система. Инфраструктура: детские площадки, спортивные площадки, места для отдыха, супермаркет, рестораны, фитнес-центр, пункты бытового обслуживания, коммерческие объекты.
Дома сданы раньше сроков, ключи в момент сделки!
Жилой квартал «Лучший» - единая экосистема домов, в которой соблюдаются стандарты максимального качества, экологичности, богатства инфраструктуры, безопасного, живописного и престижного окружения и транспортной доступности. Организация уличного пространства и формирование благоприятной, эстетически привлекательной среды за порогом жилья является важным этапом строительства. Ландшафтный дизайн жилого квартала «Лучший» включает в себя не только озеленение двора, но и создание его внутренней инфраструктуры.
График работы ОП в новогодние праздники:
31.12.25 - 03.01.26 - выходной
04.01.26 - 06.01.26 с 10: 00 до 18: 00.
07.01.26 - выходной
08.01.26 - 11.01.26 с 10: 00 до 18: 00.
С 12.01.26 - в стандартном режиме
Два 24-этажных литера, выполненных по надежной технологии монолит-кирпич.
Компания ССК выражает благодарность тем, кто ежедневно вкладывает силы в развитие страны и заботится о её будущем. В рамках программы «Доступное жильё» предусмотрена скидка 3% от стоимости приобретаемой квартиры для врачей и медицинского персонала, учителей и преподавателей школ и вузов, участников специальной военной операции, военнослужащих, моряков (Калининград) , а также молодых семей с детьми.
Мы ценим ваш вклад и стремимся сделать новое, комфортное жильё с современной отделкой и продуманной планировкой ещё более доступным для вас.
Аккредитованные банки: Сбербанк, Альфа-Банк, ВТБ, Банк Уралсиб, РОССИЯ, Абсолют Банк, Металлинвестбанк, РНКБ, ПСБ, Кубань Кредит, Банк ВБРР, Россельхозбанк.
Позвоните и узнайте условия покупки прямо сейчас!
09.12.2025
8 869 500 ₽
Продается участок 8 соток в престижном районе (Немецкая деревня)!
Кадастровый: 23:43:0107001:15043
- Район: "Немецкая деревня" - один из самых популярных и благоустроенных районов в Краснодаре.
- Инфраструктура: Рядом красивые современные жилые дома, прогулочные зоны, в шаговой доступности новые комплексы, магазины, кафе, детские сады и школа, вся необходимая инфраструктура.
- Перспектива: Отличная инвестиция в себя и своё будущее в развивающемся районе.
Идеально для строительства своего дома мечты!
*Предложение напрямую от собственника, бeз агентских процентов для покупателя.
На все имеющие дополнительные вопросы готова ответить, звоните!
07.12.2025
15 400 000 ₽
Продается участок площадью 14,71 сот.
Кадастровый: 23:13:0000000:2371
Рядом частные дома и уже обжитой район.
Категория земли: земли населенных пунктов
- Это один из самых популярных из пригородных районов.
- Близость к Краснодару (до 40 минут по хорошей трассе). Станица находится на выезде в сторону Славянск-на-Кубани, трасса действительно хорошая.
Это делает участок привлекательным для ежедневных поездок на работу.
- Инфраструктура станицы: школы, сады, поликлиника, магазины, рынок.
- Станица самодостаточная, что важно для повседневной жизни.
*Предложение напрямую от собственника, бeз агентских процентов для покупателя.
На все имеющие дополнительные вопросы готова ответить, звоните!
07.12.2025
2 250 000 ₽
Продается участок площадью 13.26 сот.
Кадастровый: 23:13:0901025:367
23:13:0901025:368
Два смежных участка с фасадом 23 метра.
Категория земли: земли населенных пунктов.
Разрешенное использование: ИЖС.
- Это один из самых популярных из пригородных районов.
- Близость к Краснодару ( до 40 минут по хорошей трассе) трасса действительно хорошая ( Краснодар - Славянск-на-Кубани)
Инфраструктура станицы: школы, сады, поликлиника, магазины, рынок.
Станица самодостаточная, что важно для повседневной жизни.
*Предложение напрямую от собственника, бeз агентских процентов для покупателя.
На все имеющие дополнительные вопросы готова ответить, звоните!
07.12.2025
2 980 000 ₽
Участок 15 соток на одной из самых загруженных трасс юга России.
- Большая площадь и фасад (линия в доль трассы): 72 метра - позволяет реализовать масштабный проект с удобным заездом и парковкой.
*Предложение напрямую от собственника, бeз агентских процентов для покупателя.
- Местоположение: Краснодарский край, Крымский район, в ст. Варениковская. Прямой фасад на федеральную трассу А-289 главную транспортную артерию, связывающую Краснодар с Крымским мостом и Крымом.
- Высокий трафик: круглосуточный поток туристов, фур и легковых автомобилей.
- Отличная видимость и доступность.
- Категория земель: Земли населенных пунктов.
- ВРИ Код 4.4: Торговые объекты (магазины, торговые центры)
Код 2.1.1: Для размещения объектов малоэтажной жилой застройки (можно построить мотель, гостевые домики)
Код 46: Общественное питание (кафе, ресторан, столовая, придорожное кафе)
*Предложение напрямую от собственника, бeз агентских процентов для покупателя.
На все имеющие дополнительные вопросы готова ответить, звоните!
06.12.2025
14 500 000 ₽
Продаются 2 комн. апартаменты, площадью 47 м2 в монолитной новостройке. Возможен вариант покупки с использованием ипотечных средств, есть рассрочка, возможна покупка с использованием материнского капитала, есть военная ипотека.
Жилая площадь 15.9 м2, кухня 13.3 м2, чистовая отделка с мебелью.
Квартира располагается на 5 этаже 9-этажного дома в ЖК Гостиничный комплекс Мореград.
Застройщик - ООО СЗ ГРАЖДАНСТРОЙАНАПА входит в состав ГК ССК, сдача дома - I квартал 2027 года.
Дом оборудован пассажирским лифтом, закрытая территория.
Подземная парковка, парковка охраняется. Обеспечение безопасности: видеонаблюдение, круглосуточная охрана, противопожарная система. Инфраструктура: детские площадки, спортивные площадки, места для отдыха, супермаркет, рестораны, пункты бытового обслуживания, коммерческие объекты.
Расположенный в живописном месте города-курорта Анапы, гостиничный комплекс «Мореград» предлагает идеальное сочетание уютной обстановки и удобного расположения. Всего в трех минутах ходьбы от тенистых зеленых аллей Пионерского проспекта, он станет идеальным выбором для отдыхающих, желающих насладиться близостью к морю.
Песчаные пляжи Черного моря, всего в 7 минутах ходьбы от комплекса, приглашают насладиться теплым солнцем и ласковыми волнами.
«Мореград» - уникальный современный гостиничный комплекс, где гостям будут доступны все удобства отельного сервиса. Коммерческие блоки и различные виды отдыха - рестораны, бары, магазины, лаунж-зоны, оборудованные спортивные и детские площадки и многое другое сделают отдых гостей незабываемым.
Набережная, море и комфорт в каждом метре - гостиничный комплекс «Мореград» в живописном городе-курорте Анапа представляет специальное предложение для тех, кто ценит выгодные решения. При оплате наличными вы получаете выгоду до 1 180 000 рублей, что делает приобретение недвижимости здесь особенно привлекательным. Расположенный всего в трёх минутах ходьбы от тенистых зелёных аллей Пионерского проспекта, комплекс сочетает уютную атмосферу и удобное расположение, идеально подходя для отдыха и постоянного проживания. Наслаждайтесь близостью к морю, высоким уровнем комфорта и перспективной инвестицией в будущее уже сегодня.
График работы ОП в новогодние праздники:
31.12.25 - 03.01.26 - выходной
04.01.26 - 06.01.26 с 10: 00 до 18: 00.
07.01.26 - выходной
08.01.26 - 11.01.26 с 10: 00 до 18: 00.
С 12.01.26 - в стандартном режиме
Позвоните и узнайте условия покупки прямо сейчас!
06.12.2025
13 160 000 ₽
Продается 2-комн. квартира, площадью 51.85 м2 в монолитной новостройке. Возможен вариант покупки с использованием ипотечных средств, есть рассрочка, возможна покупка с использованием материнского капитала, есть военная ипотека.
Жилая площадь 22.8 м2, кухня 12.2 м2, предчистовая отделка.
Квартира располагается на 3 этаже 9-этажного дома в ЖК Песчаный.
Застройщик - ООО СЗ МЕЖСАНАТОРНЫЙ входит в состав ГК ССК, дом уже сдан, высота потолков 2.72 м.
Дом оборудован пассажирским лифтом, закрытая территория.
Отдельная многоуровневая парковка, парковка охраняется. Обеспечение безопасности: видеонаблюдение. Инфраструктура: детские площадки, спортивные площадки, места для отдыха.
У каждого из нас есть свои желания и интересы, свои представления о комфорте и спокойствии, свои жизненные принципы. Жилой комплекс «Песчаный» смог учесть самые разнообразные требования, чтобы понравиться каждому. Здесь звуки современного города стихают, а вместо этого появляется лёгкий морской бриз и шум неспешных морских волн. Тут можно расслабиться и полностью погрузиться в мир без проблем и забот.
Дома возводятся по зарекомендовавшей себя во всём мире монолитно-каркасной технологии. Облицовка - вентилируемый фасад из керамогранитных плит белого, бежевого и коричневого цветов. В сочетании с витражным остеклением лоджий это позволит жилому комплексу «Песчаный» стильно выделяться среди окружающей застройки.
ЖК "Песчаный" - находится в 10 минутах от центра города и в непосредственной близости от моря и пляжей.
При покупке двухкомнатной квартиры от 66 м в ЖК «Песчаный» вы получаете парковочное место и качественный ремонт - в подарок.
Дом сдан. Въезжайте - без ожиданий, без строительства, без лишних забот.
Ремонт выполнен с вниманием к деталям: натуральные материалы, тихие перегородки, продуманные решения - всё создано для повседневного комфорта. Парковка - не просто место под машину, а свобода: больше не нужно искать место у подъезда или платить за часы в зоне ограниченной парковки.
График работы ОП в новогодние праздники:
31.12.25 - 03.01.26 - выходной
04.01.26 - 06.01.26 с 10: 00 до 18: 00.
07.01.26 - выходной
08.01.26 - 11.01.26 с 10: 00 до 18: 00.
С 12.01.26 - в стандартном режиме
Аккредитованные банки: Абсолют Банк, Совкомбанк, Альфа-Банк, Банк ДОМ. РФ, Промсвязьбанк, Банк ВТБ, Т-Банк, Россельхозбанк, МКБ.
Позвоните и узнайте условия покупки прямо сейчас!
16.12.2025
10 629 250 ₽
Продается 2-комн. квартира, площадью 56.1 м2 в монолитно-кирпичной новостройке. Возможен вариант покупки с использованием ипотечных средств, есть рассрочка, возможна покупка с использованием материнского капитала, есть военная ипотека.
Жилая площадь 25.6 м2, кухня 16.1 м2, черновая отделка.
Квартира располагается на 4 этаже 16-этажного дома в ЖК Традиции.
Застройщик - ГК ССК, сдача дома - III квартал 2027 года, высота потолков 2.72 м.
Дом оборудован пассажирским лифтом. Обеспечение безопасности: видеонаблюдение, противопожарная система. Инфраструктура: детские площадки, спортивные площадки, места для отдыха, супермаркет, рестораны, фитнес-центр, пункты бытового обслуживания, коммерческие объекты.
В жилом комплексе «Традиции» вы найдёте всё, чтобы создать свой особенный уклад жизни. Возможно, именно здесь начнётся новая семейная традиция, которая станет дорогой сердцу на долгие годы.
В радиусе 5 минут ходьбы от комплекса уже функционируют школы и детские сады, а дорога в центр города занимает 15 минут.
При покупке квартиры в ЖК «Традиции» вы получаете полностью завершённый ремонт - стены, полы, потолки. Вам не нужно тратить время и силы на отделку.
Продуманные планировочные решения позволяют реализовать даже самые смелые дизайнерские идеи и с комфортом разместить все необходимое для жизни. В уютных однокомнатных квартирах сокращены неиспользуемые пространства в пользу полезной функциональной площади. Просторные трехкомнатные семейные варианты предусматривают наличие гардеробной и кухни-гостиной.
График работы ОП в новогодние праздники:
31.12.25 - 03.01.26 - выходной
04.01.26 - 06.01.26 с 10: 00 до 18: 00.
07.01.26 - выходной
08.01.26 - 11.01.26 с 10: 00 до 18: 00.
С 12.01.26 - в стандартном режиме
Аккредитованные банки: Сбербанк, Альфа-Банк, ВТБ, Банк Уралсиб, РОССИЯ, Абсолют Банк, Металлинвестбанк, РНКБ, ПСБ, Кубань Кредит, Банк ВБРР, Россельхозбанк.
Позвоните и узнайте условия покупки прямо сейчас!
16.12.2025
7 573 500 ₽




















